諸城市騰翔環保機械有限公司
聯系人:劉經理
手機:1390 6363 487
手機:1855 3611 672
電話:0536-6058547
Q Q:550128607
郵箱:Lpx20092009@163.com
中文網址:www.曝氣機.中國
網址:m.cqjsgm.com
地址:山東省諸城市密州街道東黃疃工業園
一、產品簡介:
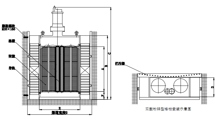
雙轉鼓粉碎型格柵除污機采用雙鼓結構,是格柵除污機的一種,又叫破碎型格柵除污機,是市政、水利、泵站系統除污設備,能將污水管網中的末片、空瓶、布片等雜物垃圾進行粉碎,以保護泵站的設備使其正常運轉。粉碎性格柵除污機能把污水中的懸浮和漂浮垃圾分碎成6-10mm的細小顆粒,粉碎后的污物無需打撈,直接隨污水流走。粉碎型格柵泵站設備能全部安裝在地下水池內,水池頂部封閉,這種泵站大大改變了傳統泵站的工作環境差、噪音大、建設成本高、運行費用大等缺陷,粉碎型格柵真正意義上實現了全地埋無人值守。
該設備既可以與傳統泵站配合使用,也可以單獨使用,主要適用于污水處理廠和中轉泵站。
二、型號說明:


五、工作原理:
擁有優的鈦合金切割刀片設計,事例數十年來技術的進步和設計革新,建立一套有效可靠產品標準。鈦合金切割刀片可以切碎多種破壞其它設備的固體顆粒,經證明適用于各種苛刻的環境。
1、固體顆粒隨著污水進水切割區;
2、固體顆粒被轉鼓截留并被輸出到切割室;
3、大部分的污水和足夠小的顆粒通過轉鼓區;
4、固體顆粒被切割并通過切割室;
5、被粉碎后的顆粒流向下游。
六、應用范圍:
1、安裝于泵站、污水處理廠進口;
2、安裝于大流量、寬幅面水渠中;
3、本機能粉碎的物品有:木棍、小石塊、紙制品、木制品、塑料制品、橡膠制品、生活垃圾等。
七、電機選擇:
普通電機:3kw或4kw
潛水電機:3kw或4kw
干濕兩用電機:4.5kw或5.5kw
八、性能測試:
防護罩和驅動機構以及整臺機械在工廠進行組裝及試運行、驗證機械符合設計規定的性能要求及有關標準。
發貨前,對貨物質量、規格、性能、數量等進行檢驗。
現場性能測試項目
1、檢測外形尺寸、外觀質量。
2、噪聲檢查:運行時,其噪聲值不大于76db(A)。
3、電氣控制應接線正確,排線整齊,無不安全因素等。
4、機械過載保護裝置靈敏可靠,過載時發出報警信號,設備停止工作。
5、檢驗運轉精度。整機試運轉應平穩,連續運轉48小時。設備工作時,整機運行平穩,無卡阻、刮擦和異常現象,機構動作靈活可靠。
九、特點:
1. 優化設計的刀片,保證切割能力和使用壽命。
2.雙鼓設計,過水流量大,可以滿足大流量的應用場合。
3. 格柵間隙小,小可達6mm,可有效保證切割尺寸。
4.進口電機減速機,提高了設備使用的可靠性。
5. 專門定制的機械密封系統,可長時間工作在惡劣的污水環境中。